• Type: Flat
  • Availability: Sold
  • Bedrooms: 2
  • Bathrooms: 1
  • Reception Rooms: 1

Ref: 4318

Property Summary
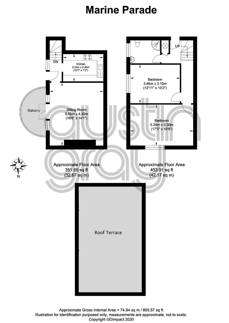
An impressive two double bedroomed split level flat for sale with a share of the freehold, no onward chain and a large balustraded roof terrace and small balcony.

Make an Enquiry

Marine Parade is situated directly opposite Brighton's seafront and is within a short walk of the bustling Kemptown village of Brighton and Hove. Shopping facilities can be found in nearby Upper St James Street and St Georges Road together with many bars, cafes and restaurants with Brighton Marina and seafront both easily accessible. The Marina is home to further shops, bars, restaurants and cinema/bowling complex. Bus services run close by providing access into the vibrant city centre.

.
Offered for sale with immediate vacant possession this two-bedroom apartment has double glazing, gas central heating, fitted kitchen with integrated appliances, large balustraded roof terrace and separate small balcony, in addition to residents parking to the front of the building.

..
Communal stairwell rising to two separate front doors.

...
One front door opens into a sitting room with telephone entry system with radiator and glazed French doors leading out to a mosaic semi-circular balustraded balcony.

....
The kitchen has high gloss units with cupboard and drawer storage, quartz working surface with 1 ½ bowl sink, five ring gas hob with extractor hood above and double oven beneath, integrated fridge and freezer, washing machine and dishwasher, quartz tiled floor, tiled walls and large serving hatch through to the sitting room.

.....
The inner hallway has double glazed sliding sash window to the rear with stairs down to the further L-shaped hallway with wall mounted boiler and hot water cylinder and second entrance.

......
Bathroom/WC with a white suite comprising off a Jacuzzi bath with shower above, low-level WC, pedestal wash basin, tiled floor, towel radiator and window to the side.

.......
There are two double bedrooms one having an easterly aspect and the other a northerly.

........
From the L-shaped entrance hall a steep wooden fixed ladder provides access up through a glass skylight to a balustraded roof terrace.

Contact us about this property

Get in touch or arrange a call back to speak to one of our specialist advisors.